• Unternehmen
    • Über uns
    • Organisation
    • Wohnbau
    • Kommunalbau
    • Gebäude­verwaltung
    • Zahlen & Daten
    • Leitbild
    • Gemeinnützigkeit
    • Organe
    • CORPORATE GOVERNANCE KODEX
    • Hinweis­geber­system
  • Karriere
  • Kontakt
  • FAQ
  • Impressum / Datenschutz
  • Suche/Sitemap
  • Aktuelle Ausschreibungen
  • Wohnungen
  • Projekte
  • Service
    • Vormerken
    • Kundenportal
    • Ansprechpartner
    • Objektbetreuung
    • Ratgeber
    • FAQ
    • Formulare
    • Links
Zurück zur Übersicht
Hier gehts zur Anmeldung

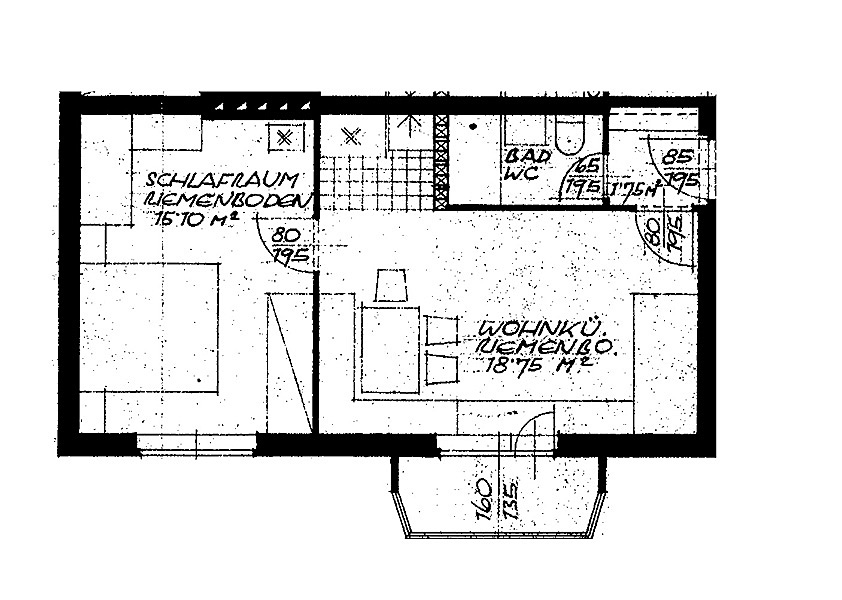
Wohnanlage der LAWOG

Linzerstr.40/5
4240 Freistadt

Bezirk Freistadt

Die Vergabe einer Wohnung kann nur an vorgemerkte Personen erfolgen! Hier gleich vormerken.

Wohnungstyp: Miete
Fläche: 40.20 m²
Räume: 3
Freifläche: Balkon
Lift: nein
Stock: 1
KFZ-Platz: kein
Ausstattung: Kategorie A
Heizung: Zentralheizung
Warmwasser Bereitung: Boiler
Finanzierung: Kaution
Miete: € 407.52
Auf Grund von Neukalkulationen / Indexanpassungen kann sich die angeführte Miete ändern.
einmalige Kaution: € 1223.00
HWBsk: 80 kWh/m²
fGEEE: 1.18

MIete inkl. Heizung

LAWOG
eingetr. Genossenschaft mbH

4021 Linz, Garnisonstraße 22
Tel.: 0 732 / 93 96 – 0, Fax: DW-261
FN 75894i-Landesgericht Linz
ATU 38911406

Ansprechpartner
KUNDENCENTER
für Fragen an die Gebäudeverwaltung
Servicezeiten:
Montag – Mittwoch + Freitag
08:00 – 12:00 Uhr
Donnerstag 13:00 – 16:00 Uhr

TEL: 0732 / 9396
NOTRUF
ausserhalb unserer Erreichbarkeit in Notfällen (Rohrbruch, Brand-, Wasserschäden, etc.)

TEL: 0732 / 3400-3630
Land Oberösterreich Logo gbv Logo gvvg Logo dwg Logo